100) ? false : true; navIsShown = (window.pageYOffset > viewportHeight) ? true : false; triggerTransitions = window.pageYOffset > (viewportHeight / 2) ? true : false; if (navIsOpen && !atTop && !navIsShown) navIsOpen = false; ">
Toggle Nav
Images
Floor Plans
Map
Scroll to Content
135 Country Ln 603
Clarksville, TN 37043
Images
Show more
Slideshow
Photo Grid
Hide
Previous
Next
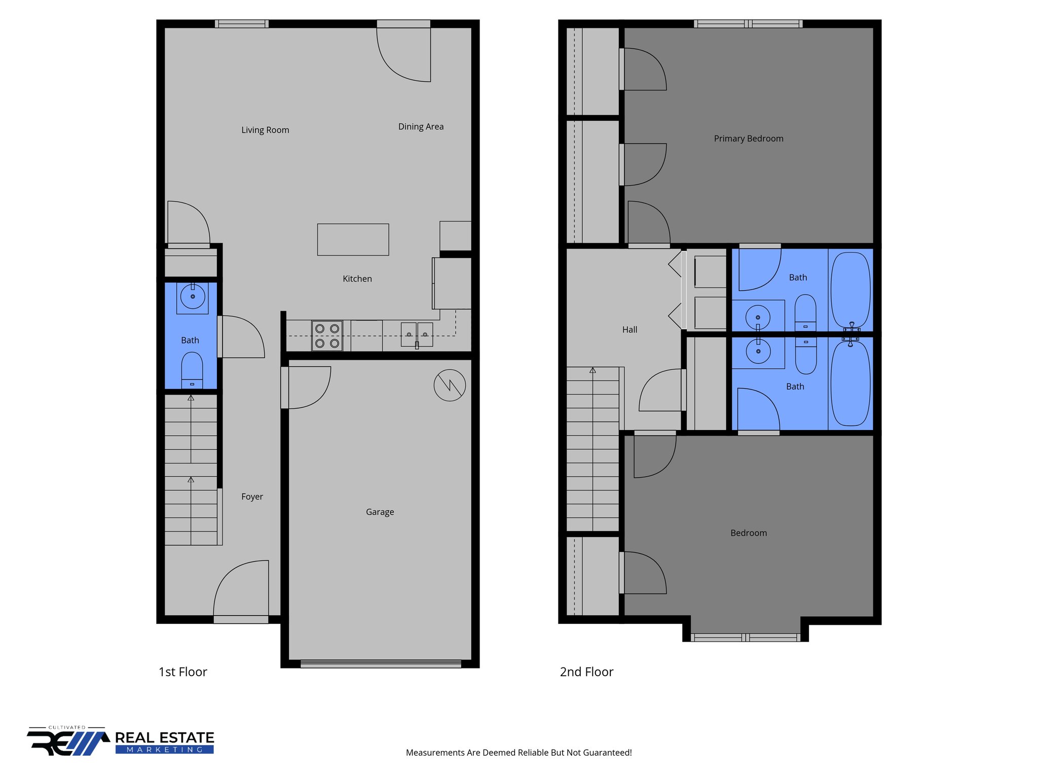
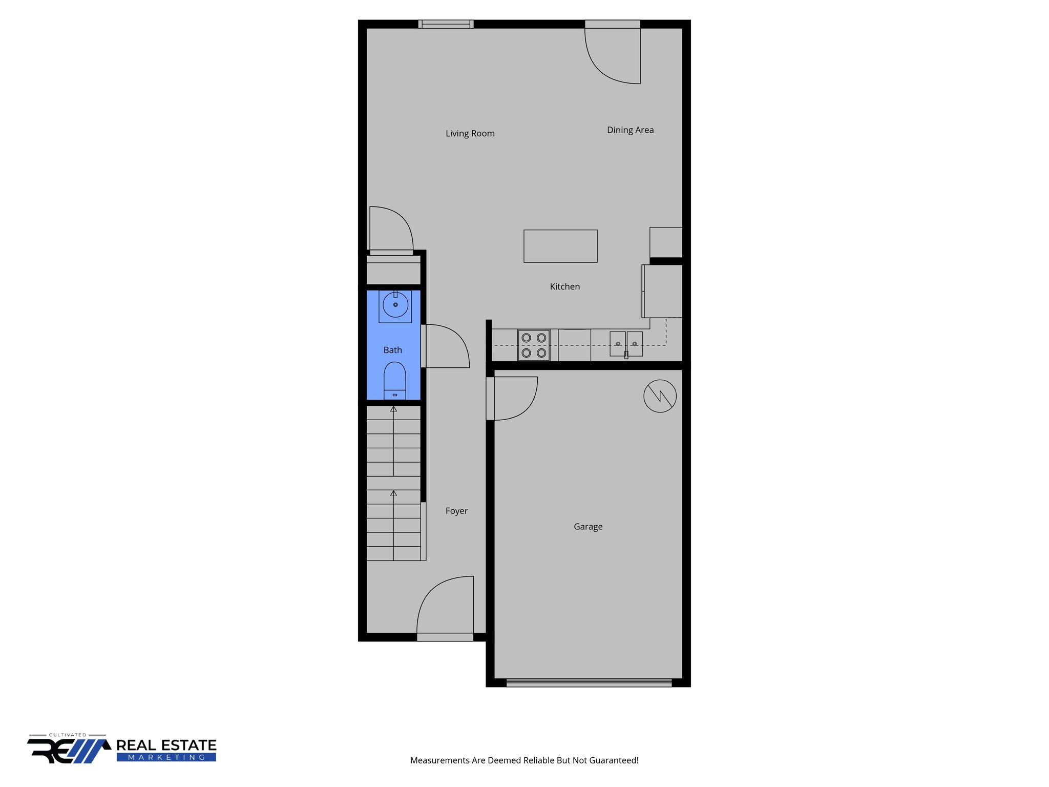
Floor Plans
Slideshow
Photo Grid
Hide
Previous
Next